
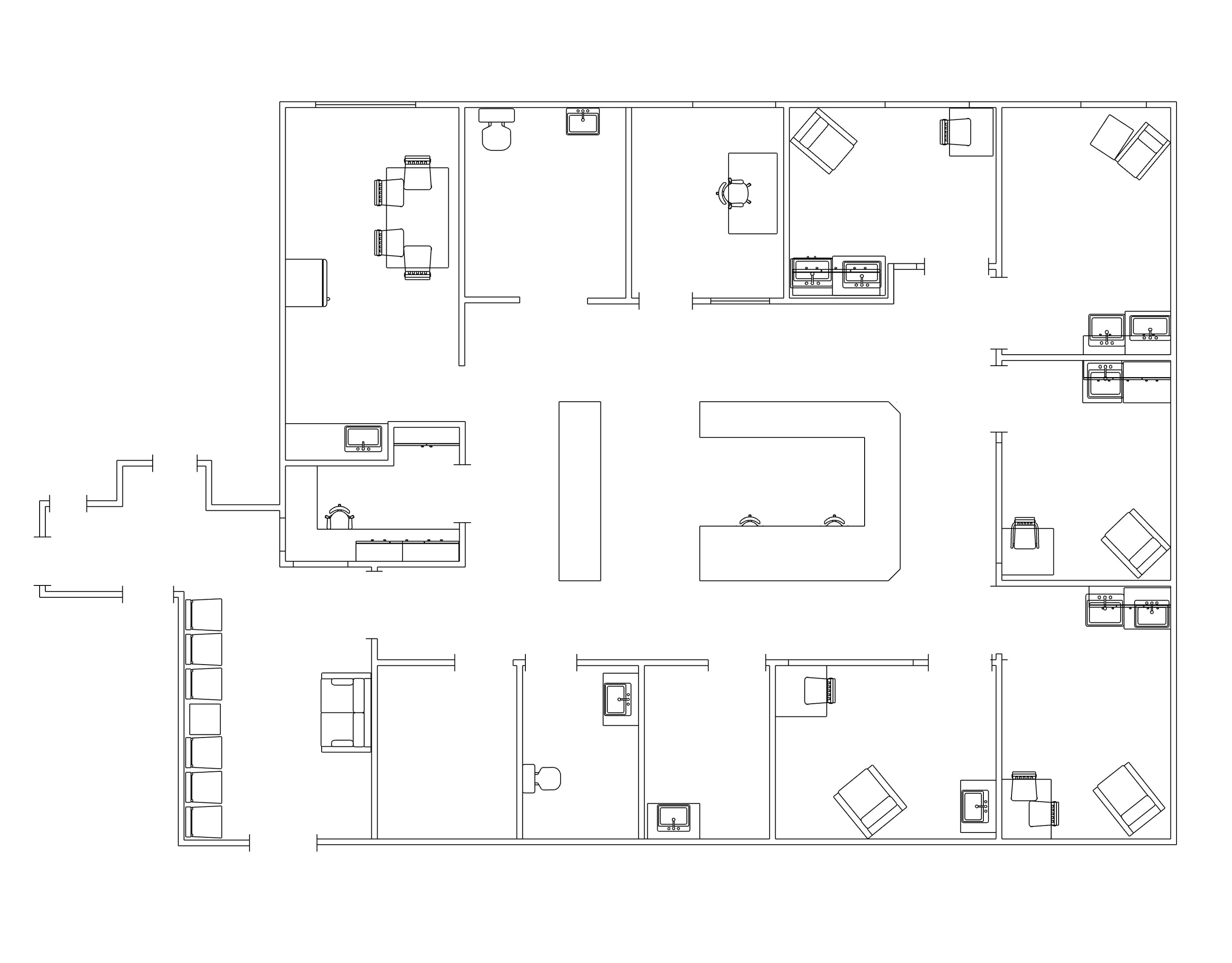
This 3,235 SF turnkey office is available for lease, offering a flexible layout ideal for medical practices, dental offices, or professional services. Formerly a physician’s office, the suite includes multiple exam rooms, private offices, and a spacious waiting area — designed for efficient patient flow and professional presentation.
Located in a highly accessible building with ample on-site parking, the space provides an excellent opportunity for practices looking to expand or relocate. The landlord offers a competitive CAM rate of 11% and is flexible on tenant build-outs, from minor adjustments to full renovations, to accommodate your specific program and workflow. See attached documents for full CAM details.
Building highlights:
Experienced on-site management team
Ample on-site parking 24-hour video surveillance
Secure common areas with coded access
Medical tenant on first floor (DaVita) and professional offices on the second floor
Elevator access.
Proposed rent schedule:
Year 1: $10.00 / SF
Year 2: $12.00 / SF
Year 3: $15.00 / SF
Year 4: 3% increase
Year 5: 3% increase
Contact the leasing team to schedule a tour or discuss tenant improvement options.
To schedule a tour, request pricing, or discuss tenant improvements, reach out to our leasing team cick on the button bellow.